$625 000

Проект №0127

  • Локация Банг Тао
  • До моря ~800–1 200 м
  • Сдача 4 кв. 2025г
  • Общая площадь 4 357 кв.м.
  • Спальни 3
  • Санузлы 3
Надежность
Опыт жилищного УК для комплекса
  • Подтвержденный локальный опыт
Статус подрядчика
  • Локальный подрядчик с опытом
Форма собственности лотов
  • Freehold
  • Leasehold
Ликвидность
Инфраструктура в комплексе
  • CCTV
  • Зеленая территория
  • Зоны отдыха
  • Охрана
Инфраструктура локации (вокруг комплекса)
  • Гольф-клуб
  • Кафе и рестораны
  • Пляж 1-2 км
  • Школа
Тип дорожной инфраструктуры
  • Асфальтированная частная дорога
Доходность
Рентал-пул
  • По договоренности
Тип управляющей компании для арендого дохода
  • Управление девелопером
  • Частная управляющая компания
  • Частное управление собственника
Наше мнение
Профиль проекта по R-Y-L
  • Инвестиционный
  • Сбалансированный

Это камерный проект в востребованном районе, заточенный под дизайн и краткосрочную аренду: японский минимализм, стеклоблоки, высокий свет, частный бассейн 9×3 м и outdoor-onsen — всё это хорошо «продаётся» на фото и в реальном опыте гостей. При этом локация в пешей доступности до Bang Tao и близость к Laguna, супермаркетам и пляжным клубам делает виллы удобными и для собственника, который планирует жить здесь часть времени.
С инвестиционной точки зрения это инструмент для тех, кто ориентирован на туристический арендный поток в верхне-среднем сегменте и готов работать с управлением (через оператора или самостоятельно). Продукт нишевой, с небольшим количеством юнитов, поэтому рассчитывать стоит не на спекулятивный «массовый» перепродажный рынок, а на сочетание арендного дохода и сохранения стоимости в престижной локации.

Эксклюзивный премиальный проект вилл, расположенный в престижной и тихой части Bangtao Beach, Пхукет.

Проект представляет собой небольшую закрытую резиденцию с всего 6 виллами, что обеспечивает максимальную приватность и ощущение уединения.

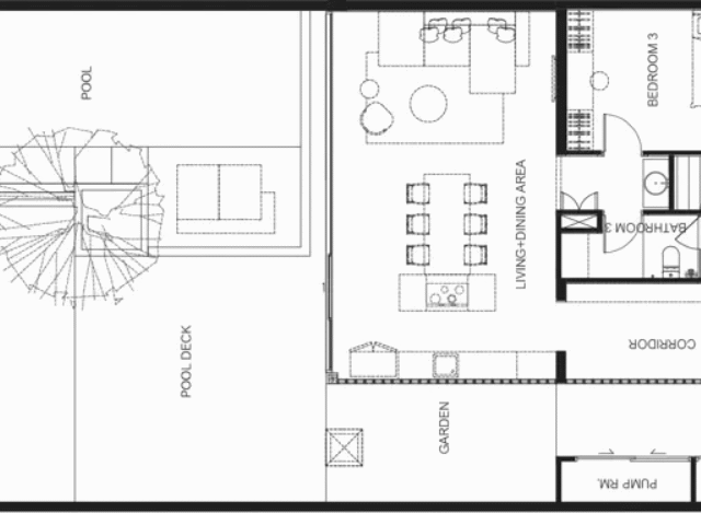
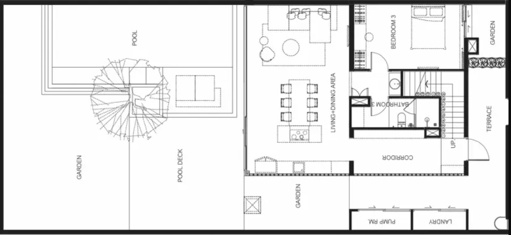
Архитектурная концепция вдохновлена японским минимализмом: чистые линии, большие окна, стеклоблоки и высокие потолки создают ощущение пространства и света. Каждая вилла двухэтажная и оборудована частным бассейном размером около 9×3 м, террасой и открытой зоной для отдыха, а также японской ванной на свежем воздухе (outdoor onsen).

На территории комплекса:
  • Закрытая резиденция
  • Круглосуточная охрана
  • Видеонаблюдение (CCTV)
  • Приватная парковка у каждой виллы (до 2 машин)
  • Сад и озеленённые зоны
  • Зона отдыха / террасы
  • Частный бассейн 9×3 м у каждой виллы
  • Outdoor onsen (японская ванна под открытым небом)
Дополнительные преимущества:
  • Приватный бассейн у каждой виллы
  • Японская ванна на свежем воздухе (onsen-стиль)
  • Дизайнерские стеклоблоки и японский минималистичный стиль
  • Двухэтажная планировка с высокими потолками и большим количеством естественного света
  • Камерный проект — всего несколько вилл в закрытой резиденции
  • Пешая доступность до Bang Tao Beach и близость к инфраструктуре Laguna / Boat Avenue / Porto de Phuket

Варианты планировок

  • S участка (м²) — от ~235 до ~300 кв.м.
  • S общая (м²) — 273-281 кв.м.
от $ 625 000

Получите персональную рекомендацию по выбору объекта

Основатель агентства
Карен
Чичян

Другие Объекты с потенциалом, которые стоит рассмотреть

Доходность ~ 5-7%
Thalang
Вилла
  • 3
  • 4
Сдан
От $520 000
Доходность ~ 6-8%
Най Янг
Вилла
  • 3
  • 3-4
Сдан
От $674 000
Доходность ~ 4-7%
Банг Тао
Вилла
  • 3-4
  • 3-5
Сдан
От $605 425
Доходность ~ 6-8%
Thalang
Вилла
  • 3-4
  • 3-6
2 кв. 2025г
От $610 499
Помогаем разобраться и выстроить собственную инвестиционную стратегию.

Что важно знать перед ивестированием в недвижиость в Таиланде

Эти материалы помогут понять, как работает недвижимость в Таиланде: от расчёта доходности до юридических тонкостей.
Посмотреть всю базу знаний